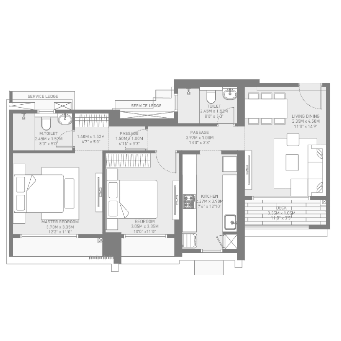
The Birla Taranya Thane floor plan is thoughtfully designed to offer maximum space utilization, comfort, and privacy. Each apartment layout is planned to suit modern living needs while ensuring proper ventilation and natural light.
The project is expected to offer multiple apartment configurations with smart layouts that minimize wasted space and enhance usability. The Birla Taranya Thane floor plans focus on well-defined living areas, comfortable bedrooms, and functional kitchens.
Along with individual apartment layouts, the site plan will showcase the overall project design, including tower placement, landscaped open spaces, internal roads, and amenity zones. This helps buyers understand the project layout and movement flow within the development.
Detailed Birla Taranya Thane floor plan PDFs and size charts will be officially released after the project launch and RERA approval. Early registrants will get first access to layout options and preferred unit selection.
👉 To receive the latest Birla Taranya Thane, site plan, and apartment size details, register your interest today.
Welcome to Birla Taranya, an upcoming residential landmark by Birla Estates located in the thriving neighbourhood of Kalwa along the Thane-Belapur Highway. This premium community-style project is spread over a massive 24.5 Acres land parcel, designed to offer a balanced blend of urban convenience and lifestyle luxury.
Birla Taranya features thoughtfully designed 2 and 3 BHK apartments with modern layouts, excellent connectivity to key hubs like Airoli, Thane, and Navi Mumbai, and a wide range of world-class amenities. Backed by the trusted Birla legacy under the Aditya Birla Group for quality, comfort, and sustainable living.
The residences at Birla Taranya are designed to bring in ample sunlight and cross-ventilation, creating homes that feel fresh and comfortable throughout the year. Large windows, well-proportioned rooms, and quality finishes make everyday living smooth and enjoyable. If you're looking for smartly planned homes in Navi Mumbai, Birla Taranya delivers both comfort and convenience.
What truly sets Birla Taranya apart is its focus on community living. With landscaped open spaces, lifestyle amenities, and a calm environment, the project offers a lifestyle that feels relaxed yet well-connected. These luxury apartments in Airoli are ideal for families who want a balanced life—close to work, schools, and entertainment, yet away from daily chaos.
Developed by Birla Estates, part of the trusted Aditya Birla Group, Birla Taranya reflects a strong commitment to quality construction, transparency, and sustainable practices—giving homebuyers complete peace of mind.
Life at Birla Taranya Airoli is designed around comfort, wellness, and community living. The project offers a carefully curated range of amenities:
These amenities are planned to suit all age groups—children, working professionals, and senior citizens—making Birla Taranya a truly family-friendly residential address.
Strategically located in the heart of Airoli, Birla Taranya offers seamless connectivity to Mumbai, Thane, and Navi Mumbai. Surrounded by top IT parks, reputed schools, hospitals, and shopping hubs, the project ensures everything you need is just minutes away.
With excellent road and rail access, including proximity to Airoli Station and the Eastern Express Highway, this location perfectly blends urban convenience with serene living.
Birla Taranya is not just a comfortable home—it's a smart long-term investment. With its strategic Airoli location, trusted Birla brand, and growing demand in Navi Mumbai, the project offers:
Whether you are searching for your dream home in Navi Mumbai or a high-growth investment property, Birla Taranya offers a perfect blend of location, livability, and long-term value.
Where is Birla Taranya located?
Birla Taranya is located in Airoli on Thane-Belapur Road, with excellent connectivity to Navi Mumbai, Thane, and Mumbai.
Who is the developer of Birla Taranya Airoli?
Birla Taranya is developed by Birla Estates, part of the trusted Aditya Birla Group.
What is the current status of Birla Taranya?
Birla Taranya is currently in New-launch phase. Possession timeline will be announced soon.
What is the total area of Birla Taranya project?
Birla Taranya is spread across a large 24.5 acres land parcel.
What configurations are available at Birla Taranya?
Birla Taranya offers 2 BHK and 3 BHK apartments with modern layouts and world-class amenities.
Is Birla Taranya a good investment?
Yes, due to its prime Airoli location, trusted developer, and growing demand in Navi Mumbai, Birla Taranya offers excellent investment potential with attractive New-launch pricing.
Does Birla Taranya offer modern amenities?
Yes, Birla Taranya includes swimming pool, clubhouse, gymnasium, jogging track, multi-sport court, children's play area, and landscaped gardens.
Who should buy apartments at Birla Taranya?
Ideal for families, IT professionals, NRIs, and investors looking for quality homes in a prime Navi Mumbai location.
1 BHK
2 BHK
3 BHK
Birla Taranya is located in Airoli on Thane-Belapur Road, Navi Mumbai, Maharashtra.
Birla Taranya is currently in New-launch phase. Possession timeline will be announced soon.
Birla Taranya is developed by Birla Estates, part of the trusted Aditya Birla Group.
Birla Taranya Airoli offers 2 BHK and 3 BHK apartments with modern layouts and world-class amenities.
Birla Taranya is in New-launch phase. Pricing will be announced soon with attractive New-launch offers.
Key amenities include swimming pool, clubhouse, gymnasium, jogging track, multi-sport court, children's play area, mini theatre, library, and landscaped gardens.
Birla Taranya is spread over a massive 24.5 acres of land.
Security features include 24×7 security, controlled/gated access, and CCTV surveillance.
Project RERA : PR1331012502243
Agent RERA : A52000293981